
CN
CN and Crowley are offering a new rail-to-vessel service, Mexico Gulf Express, that CN said allows shippers to avoid congestion at border crossings. Crowley is providing intermodal vessel service from the Port of Mobile, Ala., to the Port of Tuxpan, Mexico, with CN providing in-land service between Canada, the U.S. Midwest and the Port of Mobile.

Located in the state of Veracruz, the Port of Tuxpan is the closest port to Mexico City (155 miles) and the central Mexican states representing 49% of manufacturing activity as well as 55% of the consumer market, according to the Class I. The Port also features the first semi-automated intermodal terminal in Mexico with a capacity for 710,000 TEUs (twenty-foot equivalent units).


CN reported that agricultural shippers, in particular, can benefit from Mexico Gulf Express. “Current SENASICA rules regarding inspection for restricted commodities make rail crossing less feasible … as inspection is required at all border crossings,” the railroad said. “Using this rail-to-vessel service, these commodities can benefit from inspection upon arrival in Tuxpan.” Additionally, SENASICA inspections can often occur on the same day of arrival at the Port of Tuxpan terminal, subject to availability, reported CN, which also noted that the facility features a cold storage room for inspections.

Also at CN, The Globe and Mail’s Report on Business magazine has recognized CN President and CEO Tracy Robinson as the 2023 New CEO of the Year, the Class I reported via LinkedIn.
The magazine annually recognizes a New CEO of the Year (earned by CEO with less than three years of tenure in their current role, who has had a “significant impact on the company and its strategy”), as well as a Corporate Citizen of the Year (earned by a CEO whose “personal leadership exemplifies the idea that businesses can do well by doing good”); Global Visionary of the Year (earned by a CEO who has “successfully expanded the scope of their organization beyond Canada’s borders”); Innovator of the Year (earned by a CEO whose “vision and guidance has been instrumental in the successful creation and commercialization of a truly disruptive product or service, and/or who has pioneered a groundbreaking way of doing business”; and Strategist of the Year (earned by a CEO whose “bold decisions have materially changed and improved the strategic position of their business”).
Tracy Robinson assumed CN’s throttle on Feb. 28, 2022, replacing the retiring JJ Ruest (Railway Age’s 2019 Railroader of the Year). Only the second woman after BNSF’s Katie Farmer to become a Class I railroad president and CEO, Robinson also joined the company’s Board of Directors. She came to CN from TC Energy, where she was Executive Vice President, and President of both Canadian Natural Gas Pipelines and Coastal GasLink. Robinson spent nearly 30 years at rival Class I Canadian Pacific (prior to its merger with Kansas City Southern earlier this year).
According to the The Globe and Mail’s magazine, CEOs qualifying for awards must run a Canadian company or the Canadian arm of an international enterprise; have held their position for at least 12 months; and have demonstrated organizational success over the past one to three years, as measured by revenue growth, profitability, share price, employee counts or some combination of these elements.
CEOs of public or private companies will be considered for the award. In some cases, the magazine noted, CEOs of not-for-profit organizations, industry associations or academic institutions may be honored “provided their work is dedicated to serving, or is innately involved with, the business community.”
CSX

The Maryland Department of Transportation has received an $11.6 million Consolidated Rail Infrastructure and Safety Improvements (CRISI) grant award from the Federal Railroad Association to replace three older, higher-emission locomotives with new battery-electric units and a battery-charging station at CSX’s Curtis Bay rail terminal at the Port of Baltimore. The units, which will be the first zero-exhaust emissions locomotives at an East Coast port, are slated to help reduce emissions and noise for the Port and surrounding communities, according to the Maryland Governor’s Office.
The new locomotives are expected to annually reduce carbon dioxide emissions by 1,530 metric tons, nitrogen oxides by 71 metric tons, and particulate matter by 3.43 metric tons compared with the older units. Locomotive noise will be reduced by 70%. CSX will own and operate the battery-electrics and provide a 50% match toward the overall project price tag of $23.2 million.
“CSX is pleased the U.S. Department of Transportation has approved the application by Maryland Department of Transportation to contribute federal funding to advance sustainability efforts at the Port of Baltimore under the Consolidated Rail Infrastructure and Safety Improvements program,” CSX Resident Vice President Brian Hammock said. “We look forward to working together with our partners, including federal, state and local agencies, to advance this vital infrastructure improvement project, fostering sustainable transportation solutions and enhanced connectivity for all.”
The Port of Baltimore project is among more than 70 rail improvement projects in the United States recently rceiving grants through the CRISI program.
NS

NS on Oct. 3 reported introducing the API (Application Programming Interface) Resource Platform, “giving deeper, real-time visibility into details like shipment status, trip plans and gate receipts.”
According to the Class I, customers representing all lines of business, including dray carriers and third-party logistics providers, have been using the portal since pilot testing began in late 2022. Feedback has been “overwhelmingly positive,” NS said.
The new API Resource Platform enables thousands of automated data exchanges every day, which NS said improves supply chain management processes through continuous updates. The most utilized APIs include shipment status (pinpointing current location and ETA for shipments and accessing details such as commodity, origin, and destination to proactively plan and staff delivery); trip plan (tracking a shipment’s progress on its planned route with its current ETA, future movements, and completed movements); and gate receipts (accessing gate receipt data, terminal and driver information, and equipment pickup numbers).

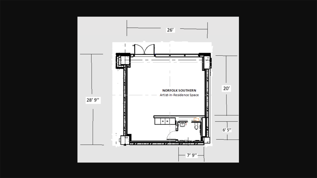
Also on Oct. 3, NS reported that it is offering two years of studio space in its Atlanta, Ga., headquarters to a local artist.
Art is a “celebration of who we are, where we come from, and who we aspire to be; of our common purpose; and the culture we’re building together,” according to the Class I. “After the merger of Norfolk & Western and Southern railroads in the 1980s, art helped us to build a shared culture and common ground among our employees. Understanding the impact that art can have, Norfolk Southern has been a long-standing supporter of arts and culture in the communities we serve. We are excited to continue this tradition … through our artist-in-residence program.”
NS is now seeking applications for a visual artist who not only wants to take advantage of the highly visible studio space in midtown Atlanta, but also is “motivated to engage with and build connections with our employees through the power of art.” The railroad said the artist will have full access to the 755-square-foot studio space at no cost, including all utilities and internet connectivity. The artist will also receive an annual stipend of $5,000 ($3,000 to help purchase materials and $2,000 for parking).
Artist requirements include: signing a contract with NS detailing the two-year lease terms; working in the studio at least 20 hours per week; using the studio as workspace, not as a living space, salesroom, administrative office or a sublet; following standard studio-practice safety procedures; being cognizant of their work in a corporate environment and of noises, smells and personal behavior when it comes to art production; and having general liability insurance or signing a waiver of liability.
According to NS, at the completion of the residency, the artist will be asked to donate an artwork or works of art valued at $10,000 retail to the building as part of the railroad’s Artist in Residency collection. Selection of artwork will be determined by the artist and an NS representative.
Artists must submit a résumé, biography and 10 images of their work to Anne Lambert Tracht at anne@consultartinc.com by Oct. 22. Representatives of ConsultArt and NS will select the artist, who must be available to move in by February 2024.
NS Chief Operating Officer Paul Duncan will be discussing the work of the Operations teams in a new video series called “From the Ballast Line, a Conversation with Paul Duncan.” NS said Duncan will provide an update on its “strategic priorities and performance” in each video.
The first video (see above) covers safety. Here’s what Duncan had to say:
A strong safety culture starts with leadership: “First and foremost, enhancing our safety culture starts with us as leaders. We know as leaders that we set the tone, tone is what influences culture, and that culture is what drives ultimately the safety outcomes that we see. Our top priority when we talk about safety is ensuring that we are getting everyone home in the same way they came.”
Involving labor leaders to enhance our safety culture together: “We know that in order to enhance our safety culture it’s going to take all of us. It was very important this year that we engaged with our labor leaders. We’ve met with senior leaders at the national level, our general chairman, and our local chairman to ensure that that message is being carried forward and that we are enhancing the safety culture together.”
Safety is part of our long-term vision: “Safety is part of our long-term vision. We want to safely deliver reliable and resilient service for our customers. This is part of our strategic vision. We know that in order to grow, in order to service our customers, everything is going to start with safety. And it’s important for us that we deliver for our customers in a safe manner. There is no job so important that we cannot take the time to do it safely. Everything will start with safety at Norfolk Southern.”




